• MoeJo Designs
  • about
  • Design Portfolio pre MoeJo
  • contact

Moe Jovie Elio

Portfolio

  • MoeJo Designs
  • about
  • Design Portfolio pre MoeJo
  • contact

Work & Class

Work & Class

 

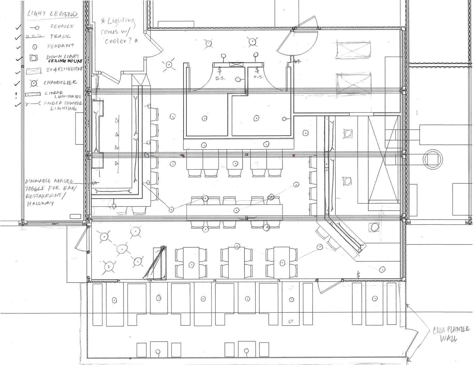
while working for Work Shop as the designer on this project my specific work duties included; concept ideas, interior and exterior space planning, construction drawings, interior and exterior elevations, detail drawings, color palette, procuring fixtures/furniture/textiles/tile/samples etc., 3D SketchUp model, presentation drawings, detail design (custom steel tables and shelving, art wall, booths, bathrooms, patio wall and planters), client and contractor meetings, client correspondence, and perspective and rendering drawings.

in partnership with the owners of Work & Class, graphic design group Matter and the contract team from Sprung,  Work Shop* designed a restaurant within shipping containers where LoDo ends and the RINO neighborhood begins. this up and coming area has fully embraced this cozy new restaurant with it's hard edges and big city feel. with the building being made out of shipping containers we kept with the reused feel adding in old conveyor belts for the host stand and community table, repurposed lath from a building in Denver for feature walls and chairs from all over the world, literally. the focal point of the restaurant is a photo of an old warehouse in Detroit, MI which is where the owners and I drew inspiration from for the entire space. one of the biggest inspirations from the photo was the windows. we mimicked the old warehouse windows with custom built windows that open up to the patio to give it that warehouse feel and they really make the space. this space is for everyone, the working class people, and Denver is loving it. 

*project completed while i was on staff at Work Shop Denver

W&C 7.14-2627.jpg
Screen Shot 2013-09-18 at 3.55.38 PM.png
Screen Shot 2013-09-18 at 3.55.52 PM.png
Screen Shot 2013-09-18 at 3.56.04 PM.png
Screen Shot 2013-09-18 at 3.56.16 PM.png
Screen Shot 2013-09-18 at 3.56.24 PM.png
Screen Shot 2013-09-18 at 3.56.36 PM.png
Screen Shot 2013-09-18 at 3.56.46 PM.png
Screen Shot 2013-09-18 at 3.57.04 PM.png
Screen Shot 2013-09-18 at 3.57.12 PM.png
Screen Shot 2013-09-18 at 3.57.24 PM.png
Screen Shot 2013-09-18 at 3.57.39 PM.png
Screen Shot 2013-09-18 at 3.57.51 PM.png
Screen Shot 2013-09-18 at 3.58.01 PM.png
Screen Shot 2013-09-18 at 3.58.15 PM.png
Screen Shot 2013-09-18 at 3.58.27 PM.png
Screen Shot 2013-09-18 at 3.58.38 PM.png
Screen Shot 2013-09-18 at 3.58.55 PM.png
Screen Shot 2013-09-18 at 4.00.49 PM.png
Screen Shot 2013-09-18 at 4.01.28 PM.png
Screen Shot 2013-09-18 at 4.01.41 PM.png
Screen Shot 2013-09-18 at 4.01.53 PM.png
W&C-lighting.jpg
W&C 7.14-2566-2.jpg
W&C 7.14-2587-2.jpg
W&C 7.14-2618.jpg
W&C 7.14-2624.jpg
W&C 7.14-2630.jpg
W&C 7.14-2649.jpg
W&C 7.14-2651.jpg
W&C 7.14-2659.jpg
W&C 7.14-2663.jpg
W&C 7.14-2669.jpg
W&C 7.14-2685.jpg
W&C 7.14-2722.jpg
W&C 7.14-2726.jpg
W&C 7.14-2731.jpg
W&C 7.14-2712.jpg
W&C 7.14-2704.jpg
W&C 7.14-2701.jpg

Powered by Squarespace.